ALL
Commercials
FICCION narratives
OTHER
Bio + Contact
Marina Faggin
Cenografia e Direção de Arte :: Set Design & Production Design
ALL
Commercials
FICCION narratives
OTHER
Bio + Contact

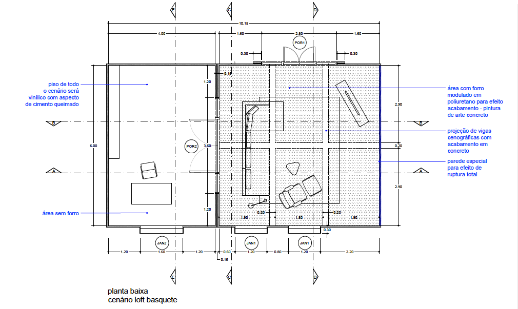
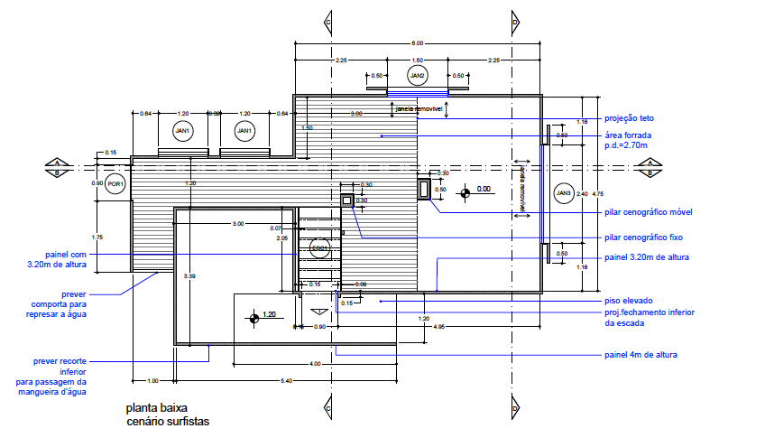
Vivo :: A Revolta dos Conteudos

PD Billy Castilho_Dir. Pedro Becker_Prod. Co. Fat Bastards

2017
↑
Copyright protected content. For permissions or inquiries, please contact me at bio +contact session.